Programy Audytor OZC oraz Audytor SET w wersji Pro, dzięki współpracy z FLUID DESK, zyskały nową bezpłatną eksperymentalną opcję importu modelu graficznego budynku z plików IFC. Dzięki rozwiązaniu Fluid Desk opartemu na sztucznej inteligencji istnieje możliwość automatycznej konwersji modeli IFC wielopiętrowych budynków mieszkalnych do pliku w formacie gbXML, który następnie można zaimportować do programów Audytor OZC i Audytor SET.
Zamówienie usługi konwertowania pliku IFC do formatu gbXML można wysłać na adres email:
![]() |
![]() |
Powstała nowsza wersja wtyczki Audytor BIM Tools, która umożliwia zapisanie modelu budynku stworzonego w programie Revit do pliku gbXML. Generuje ona również podkłady dwg dla każdej z kondygnacji budynku.
Pobierz aktualizację wtyczki Wnioskuj o bezpłatną wersję wtyczki
W ostatniej aktualizacji programów Audytor OZC 7.0 Pro i Audytor SET Pro pojawiła się opcja umożliwiająca importowanie modelu obliczeniowego budynku, modelu graficznego budynku oraz podkładów dxf/dwg poszczególnych kondygnacji.
Takie rozwiązanie pozwala na korygowanie modelu graficznego w przypadku, gdy zaimportowany model obliczeniowy nie jest w pełni poprawny. Projektant w modelu graficznym może dokonać niezbędnych zmian i stworzyć nowy model obliczeniowy.
Podczas importu danych z pliku gbXML należy zadecydować jakie elementy zostaną utworzone w programach Audytor. Można zaimportować same podkłady budowlane.
Pobierz aktualizację Audytor OZC Pobierz aktualizację Audytor SET
Opcje importu:


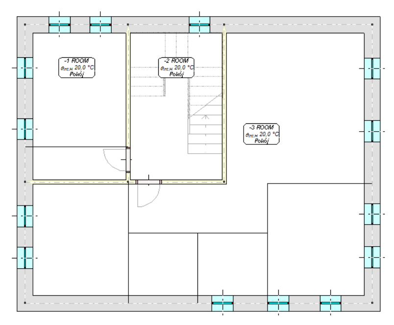
Podkład budowlany:

Podkład budowlany wraz ze strefami pomieszczeń i komponentami budowlanymi:

Model obliczeniowy zawarty w pliku gbXML:

Aby import wszystkich elementów przebiegał prawidłowo, pliki gbXML oraz pliki podkładów budowlanych dxf/dwg muszą być umieszczone w tym samym folderze.
Zaimportowany model graficzny można zmodyfikować a następnie stworzyć nowy model obliczeniowy.

Zmodyfikowany model budynku na rzucie:











